
10
CONSTRUCTION DE 120 LOGEMENTS

9
CONSTRUCTION DU PÔLE ENFANCE LOUIS GIRARD

17
CONSTRUCTION DU GROUPE SCOLAIRE ROSA BONHEUR

14
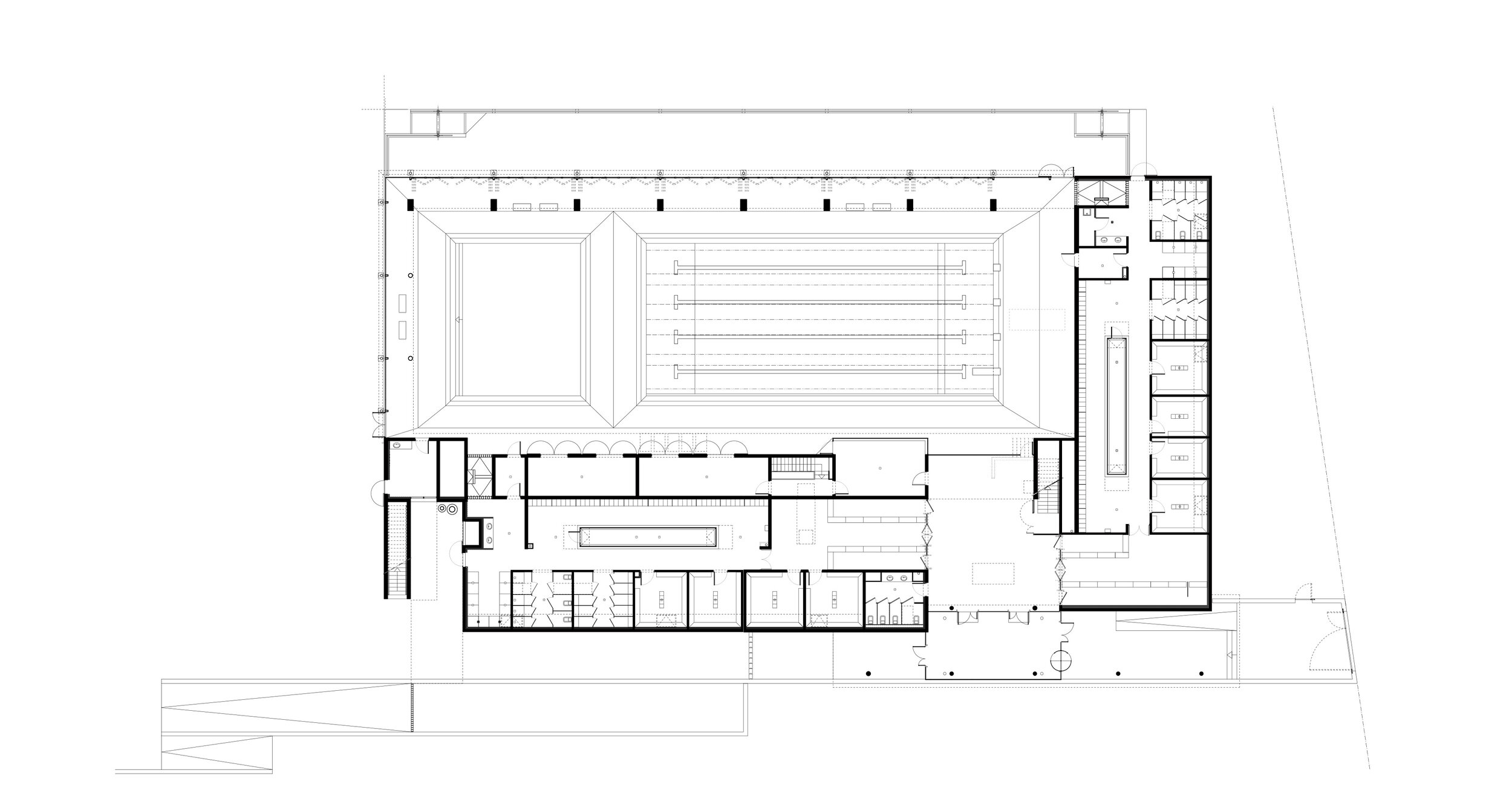
CONSTRUCTION DU CENTRE AQUATIQUE L’ODYSSEE Ô

13
RESTRUCTURATION DES HALLES SPORTIVES GÉNICOUD

10
CONSTRUCTION DE 48 LOGEMENTS

5
RESTAURATION DE L’ILOT JUIVERIE

8
CONSTRUCTION DU GROUPE SCOLAIRE LES TILLEULS

10
EXTENSION DU LYCÉE ROUVIÈRE

4
CONSTRUCTION DE 24 LOGEMENTS

15
RESTRUCTURATION DU LYCÉE DU GOLFE DE SAINT-TROPEZ

9
CONSTRUCTION DE LA PISCINE – ÉCOLE DES PUPILLES DE L’AIR

2
RESTRUCTURATION DES PLACES PIE ET SAINT-JEAN-LE-VIEUX

7
CONSTRUCTION DU GROUPE SCOLAIRE LES PINÈDES
6
AMÉNAGEMENT DES THERMES DE CONSTANTIN

5
AMÉNAGEMENT DU COURS JEAN JAURÈS AVIGNON (84)

9
CONSTRUCTION DE LA SALLE POLYVALENTE AGORA

6
AMÉNAGEMENT DES JARDINS DE LA PRÉFECTURE DE VAUCLUSE AVIGNON (84)

7
EXTENSION DE LA PRÉFECTURE DE VAUCLUSE

5
AMÉNAGEMENT D’UNE GALERIE D’ART

12
CONSTRUCTION DU LYCÉE MAURICE JANETTI

6
CONSTRUCTION DU SIÈGE SOCIAL – LAFARGE PLÂTRES

3
CONSTRUCTION DE L’ÉCOLE PRIMAIRE JEAN-HENRI FABRE

5
CONSTRUCTION DE LA RÉSIDENCE UNIVERSITAIRE LAUGIER